Appartement
€ 175.000

Victor Govaerslaan 6 B501, 2170 Merksem
    • delen

Omschrijving Ref.: 7627120

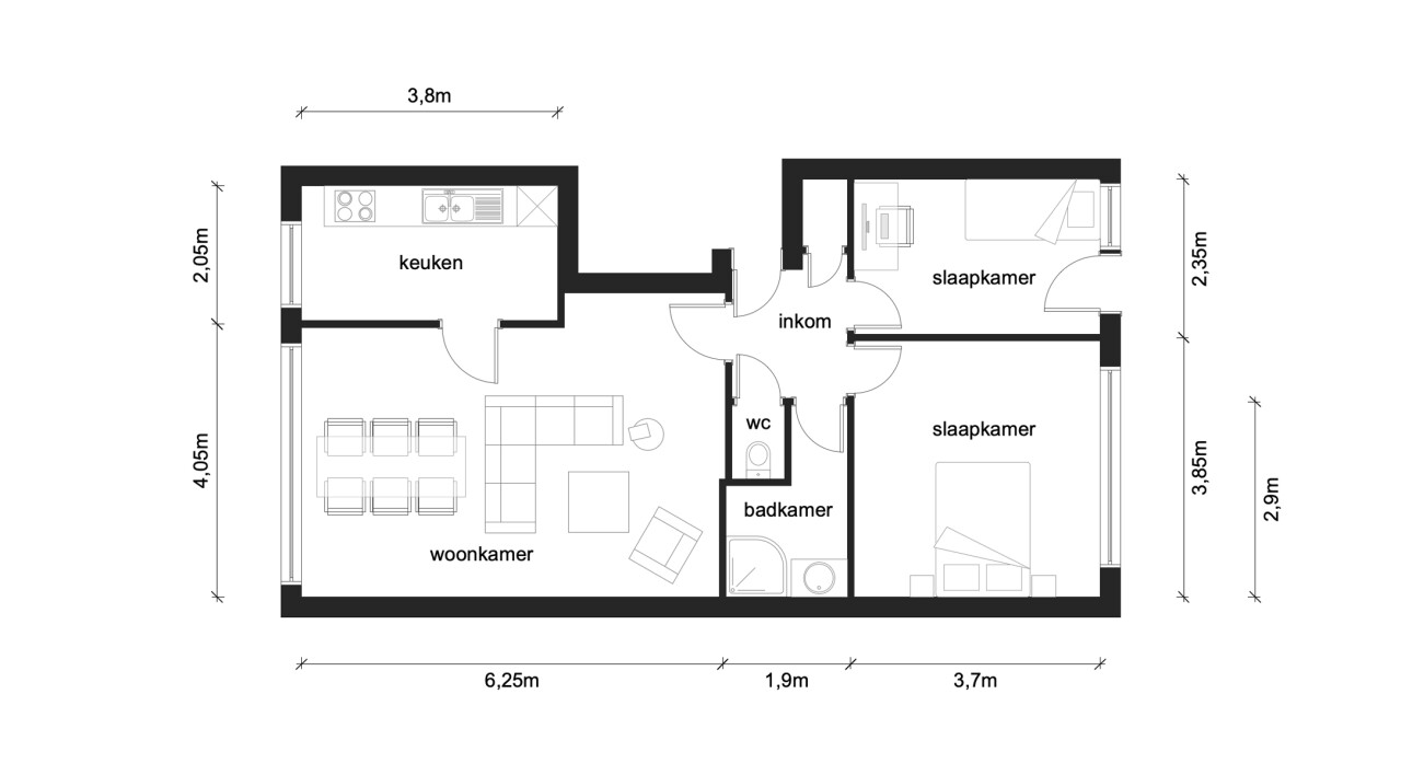
Licht appartement met 2 slaapkamers


Op de vijfde verdieping van het gebouw residentie "Del Sarto" bevindt zich dit appartement. Op deze hoogte geniet u van veel lichtinval en een open zicht, wat zorgt voor een ruimtelijk gevoel. Bij het betreden van het appartement komt u in de inkomhal met handige berging en een apart gastentoilet. De ruime leefruimte met grote ramen biedt een aangenaam zicht en sluit aan op de keuken. De badkamer is uitgerust met een douche, wastafel en voorziening voor een wasmachine en droogkast. Achteraan bevinden zich twee volwaardige slaapkamers, beide met rolluiken. Vanuit de kleine slaapkamer heb je toegang tot het terras. Extra troef: op het gelijkvloers beschikt u over een private, ruime berging. De verwarming en het waterverbruik zijn gemeenschappelijk, maar worden geregistreerd via aparte tellers. De gemeenschappelijke kosten bedragen €145,-/maand met een provisie voor verwarming en water. Ook interessant als investering.


DK & L Vastgoed - Antwerpen-Merksem

Vragen over deze eigendom ref: 7627120
contact

Details van het pand

Financieel

Prijs
€ 175.000,00
Beschikbaarheid
Vanaf akte
Beschikbaarheid datum
01 Juli 2026
Kadastraal inkomen
€ 882,00
Gemeenschappelijke kosten
€ 145,00/maand

Ligging

Buurt
Woonkern
School nabij
Ja
Winkels nabij
Ja
Openbaar vervoer nabij
Ja
Mobiscore
9,00

Gebouw

Bewoonbare oppervlakte
78,00 m²
Aantal gevels
2
Bouwjaar
1970
Renovatiejaar
2022
Verdiep
5
Aantal verdiepingen
6
Netto oppervlakte
78,00 m²
Voorgevel
Metselwerk
Oriëntatie voorgevel
Zuidoosten

Terrein

Oriëntatie terras 1
West

Parkeermogelijkheden

Fietsenberging
Ja

Indeling

Woonkamer
26,00 m²
Keuken
8,00 m², gedeeltelijk geïnstalleerd
Berging
Ja
Nachthal
3,50 m²
Slaapkamer 1
14,00 m², laminaat
Slaapkamer 2
10,00 m², laminaat
Badkamer 1
4,50 m²
Toiletten
1
Terras
3,50 m²
Kelder
Ja

Comfort

Parlofoon
Ja
Rookdetector
Ja
Lift
Ja
Gepantserde deur
Ja
Zwembad
Nee

Energie

EPC
361 kWh/m²/jaar
EPC unieke code
20220728-0002647684-RES-1
Dubbele beglazing
Ja, thermische onderbreking
Ramen
Hout of pvc
Elektriciteitskeuring
Ja, conform
Type verwarming
Gas cv
Verwarming
Collectief

Technieken

Elektriciteit
Ja
Telefoonbekabeling
Ja
Kabeltelevisie
Ja
Riolering
Ja
Gas
Ja
Water
Ja

Stedenbouw

Bestemming
Woongebied
Bouwvergunning
Ja
Verkavelingsvergunning
Niet meegedeeld
Voorkooprecht
Niet meegedeeld
Asbestinventarisattest
Ja
Dagvaarding
Niet meegedeeld
O-peil
Niet gelegen in een overstromingsgevoelig gebied
G-score
A
P-score
C
Kadaster nummer
A 232 a7

Meer info over deze eigendom

Bedankt voor je bericht, we contacteren je zo spoedig mogelijk.
Er was een probleem bij het versturen van het formulier, gelieve opnieuw te proberen.
(*) Gelieve de verplichte velden in te vullen.